NUOVI SPAZI DI RELAZIONE

spazi pubblici

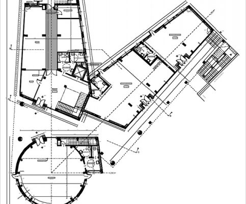
Palazzo municipale

L’intervento, scelte e riflessioni

UBICAZIONE: Marcheno (BS)

Il nuovo polo municipale nasce da una dialettica con il contesto ambientale preesistente: da un lato la presenza del fiume Mella con il ripido versante montuoso, dall’altro la strada che attraversa la Val Trompia.
Dalla strada al fiume gli spazi diventano sempre meno pubblici e sempre più privati: la piazza si trasforma in elemento connettore tra pubblico e privato ed il Municipio diventa diaframma tra spazi pedonali e carrabili. Il complesso del palazzo municipale si apre a compasso ruotando intorno ad un perno centrale che ospita la sala civica del consiglio comunale, simbolo della vita politica del paese, architettonicamente definita da un volume cilindrico. Da essa si snodano i due bracci dell’edificio pubblico, uno parallelo alla strada e l’altro orientato secondo l’asse eliotermico; il primo volume a tre livelli si affaccia su strada mentre il secondo a due livelli si affaccia sulla piazza aprendosi verso il miglior soleggiamento.
Il terzo piano del corpo edificato su strada poggia sul blocco vetrato destinato ad uffici: abbracciando la sala civica realizza un passaggio coperto a due livelli da cui si accede alla sala, agli uffici ed alla piazza porticata. Quest’ultima, chiusa al traffico veicolare, è delimitata da un lato dal Municipio, per due lati da un edificio privato ed infine da alberature che consentono la visione verso la strada principale.
parcheggi pubblici si distribuiscono in parte in prossimità della facciata principale ed in parte presso l’ingresso di accesso all’interrato: tale livello ospita invece i parcheggi privati di pertinenza del Municipio e destinati alla residenza.
Le finiture delle superfici esterne sono realizzate con materiali naturali: legno e rame sono trattati ed applicati con moderne tecnologie.

Una facciata in legno e rame per un municipio in Valle

In questo progetto grande importanza ha rivestito la scelta dei materiali di finitura esterna del nuovo municipio. I materiali naturali, trattati ed applicati con tecnologie moderne eco-sostenibili, fanno riferimento al contesto storico-economico locale: il legno da sempre materiale da costruzione ed elemento portante dell’attività rurale valtriumplina; il rame quale simbolo di un’economia storicamente vincolata alla lavorazione dei metalli.