NUOVI SPAZI DI RELAZIONE

spazi pubblici

Centro per anziani

L’intervento, scelte e riflessioni

UBICAZIONE: Bovezzo (BS)

Il Centro Diurno Integrato di Bovezzo è un progetto che è stato realizzato in concomitanza dell’uscita della normativa regionale lombarda (D.G.R. del 22 marzo 2002 n.7/8494) dedicata ai servizi socio-sanitari con funzione intermedia tra la residenza e la RSA, cioè la residenza socio assistenziale.

Obiettivo del progetto è stata la realizzazione di una struttura da adibire a centro diurno integrato per anziani in un’area centrale del comune di Bovezzo, in prossimità di altri servizi pubblici già esistenti (scuole, palestra, chiesa) o in fase di progetto di progetto (scuola materna sul lotto adiacente). All’interno della struttura del centro diurno è stata inoltre definita un’area da destinare a centro ambulatoriale con servizio di guardia medica di competenza dell’ASL.

Il progetto si è confrontato sia con le preesistenze sia con le strutture di previsione cercando di dialogare con esse per un disegno coerente di un’area urbana di completamento.
La conformazione del lotto, intercluso fra altri interventi, e la destinazione d’uso dell’edificio hanno contribuito all’impostazione planivolumetrica generale.
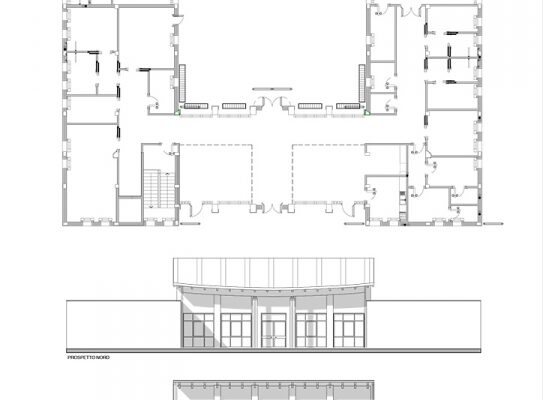
La tipologia dell’utenza ha guidato le scelte compositive ed architettoniche: si è posta particolare attenzione al concetto di accoglienza, fruibilità ed accessibilità degli spazi, privilegiando un fabbricato a corte con un unico piano fuori terra. Il complesso è composto da tre corpi di fabbrica: il blocco centrale, più alto, è orientato secondo l’asse eliotermico ed ospita l’ingresso principale ed il salone polivalente dedicato all’attività giornaliera. La copertura di questo corpo è costituita da un’unica ampia falda di forma semicircolare inclinata verso l’ingresso. I due corpi minori, di pari altezza, hanno copertura piana e delimitano la corte interna.
Il progetto ha cercato di coordinare le prescrizioni a livello urbanistico con le indicazioni e gli standard forniti dalla normativa regionale dedicata ai servizio sociosanitari: particolare attenzione è stata rivolta alla protezione antisismica, antincendio ed acustica.

Un grande soggiorno aperto al sole

L’edificio a corte accoglie l’anziano e lo accompagna verso il grande spazio centrale polivalente che comunica con gli spazi sanitari, con l’orto e con il giardino interno. Il grande soggiorno vetrato, destinato sia al pranzo che alle attività ricreative è uno spazio associativo in cui “stare insieme” e da cui osservare il paesaggio e le stagioni.