QUALITÀ ERGONOMICA
DEGLI SPAZI

residenziale e direzionale

Una grande terrazza

L’intervento, scelte e riflessioni

UBICAZIONE: Milano (MI)

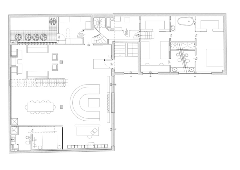
L’intervento riguarda la ristrutturazione di un loft all’interno di un palazzo nel Quartiere “Isola” a Milano.

Il progetto ha interessato la fusione di due unità immobiliari e lo studio della distribuzione dei locali d’abitazione, degli impianti, delle finiture e degli arredi. Lo studio preliminare ha diversificato i tre diversi livelli distributivi e tipologici a differenti momenti dell’abitare, privilegiando le zone dedicate al living ed alla molteplicità di funzioni ad essa correlate. Dall’ingresso si accede direttamente alla grande zona giorno dove trovano spazio un grande tavolo da pranzo, due zone relax, un’area dedicata allo studio ed un blocco semicircolare destinato a guardaroba-servizio per gli ospiti.

Al centro del loft si sviluppa una scala rettilinea realizzata a disegno che divide trasversalmente il grande locale e porta al piano superiore, dove all’interno di una serra è collocata la cucina ed un pranzo più privato. La cucina tramite la trasparenza del ferro e vetro comunica direttamente con l’esterno; un sistema di brise-soleil in alluminio consente la schermatura dai raggi solari. La zona notte si trova oltre un’ala rialzata nei pressi dell’ingresso ed è composta da 2 camere e 2 bagni dedicati; tramite una scala a chiocciola lo spazio principale è collegato ad una seconda serra dove si trova la zona fitness.

Entrambe le serre affacciano su un’ampia terrazza, che è stata oggetto di un accurato studio del verde. Elemento unificatore dei diversi ambienti è il pavimento in parquet di rovere, trattato con prodotti naturali, che domina zona giorno e zona notte entrando anche nei bagni. Unica eccezione alcune zone di passaggio ed i piani dei bagni che sono stati realizzati in resina con coloriture diverse. Anche la maggior parte degli arredi è stata realizzata a disegno. Le grandi porte scorrevoli dipinte della zona notte sono state progettate come quadri che arricchiscono la funzione di divisione degli spazi diventando veri e propri elementi d’arredo.

Nella ristrutturazione particolare attenzione è stata posta allo studio degli impianti, cercando di mediare il più possibile tra tecnologia, estetica e limitazioni di carattere strutturale. La parete confinante con l’esterno ha un riscaldamento radiante integrato da termosifoni funzionanti a bassa temperatura. Di particolare effetto risultano gli imponenti tubi metallici dell’impianto di condizionamento che attraversano trasversalmente il loft.