QUALITÀ ERGONOMICA
DEGLI SPAZI
residenziale e direzionale

Appartamento con un cuore da ampliare

Milano (MI)

DATI PROGETTO

UBICAZIONE: Milano (MI)

CONDIVIDI
Twitter Facebook Google Plus
L’intervento, scelte e riflessioni
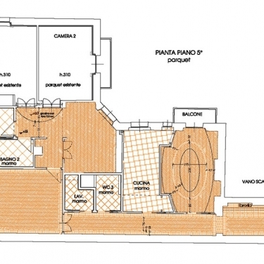
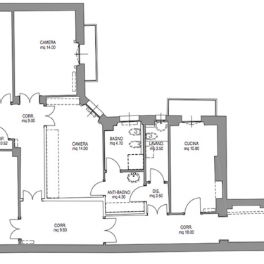
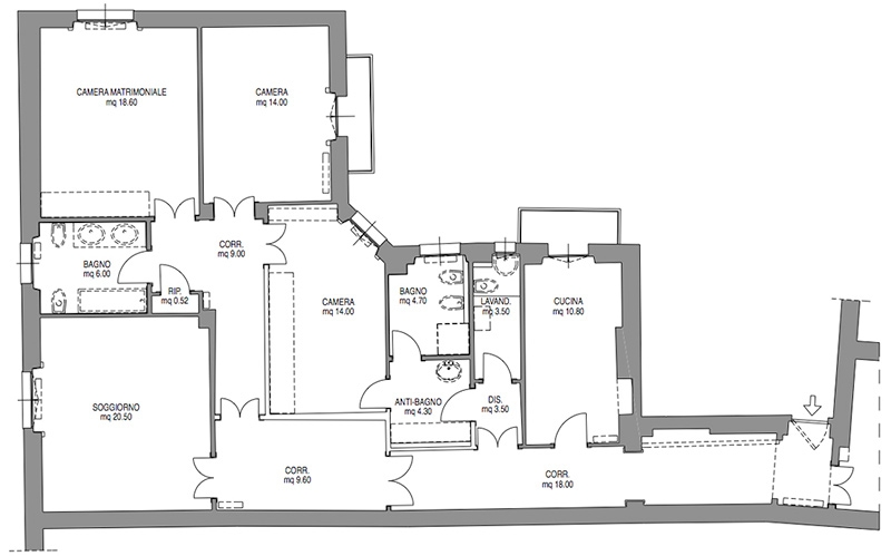
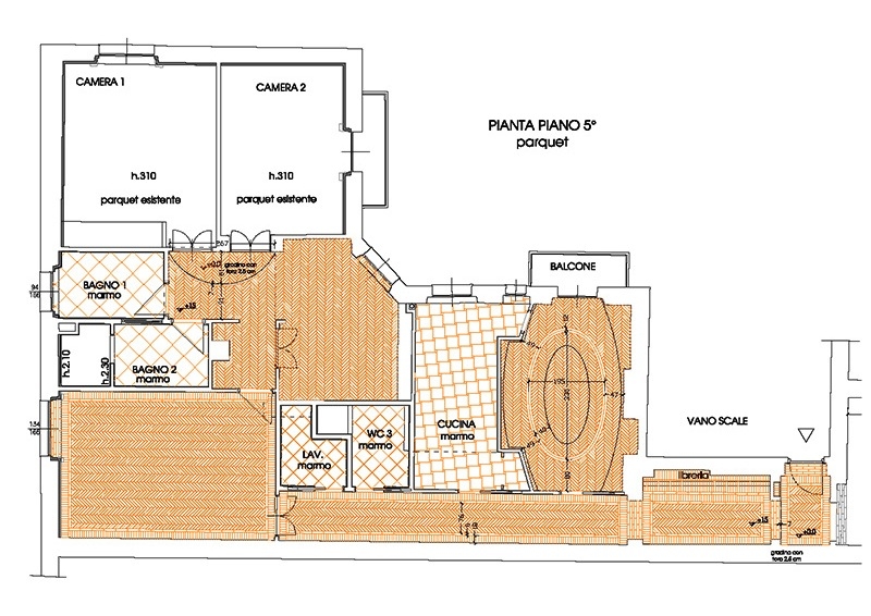
La ristrutturazione dell'appartamento aveva come obiettivo prioritario il recupero degli spazi di distribuzione che risultavano numerosi rispetto agli spazi di abitazione che comunque non dovevano diminuire in quantità.
Il risultato si è raggiunto modificando interamente il "cuore" dell'appartamento, circa 90 metri quadrati, creando un living molto ampio di collegamento fra la zona giorno e quella notte, ridistribuendo le altre destinazioni, ottenendo un servizio igienico ed una sala da pranzo aggiuntivi rispetto agli spazi precedenti.
Per la nuova sala da pranzo si è realizzata una stanza ovale interamente rivestita di boiserie in legno di un bel colore rosso acceso e comunicante con la cucina attraverso un passavivande. Sono stati necessari lavori di rinforzo strutturale dei solai con l’inserimento di putrelle in acciaio che hanno comportato un rialzo nella zona centrale dell’appartamento.
Collaboratori: Studio d'Architettura Sangiorgi
Intervista alla Sig.ra Marina Fares Barbaro, proprietaria dell'immobile

"La problematica della nostra casa era avere tanti spazi e stanze non utilizzati come spesso accade per le case d'epoca, la nostra è dei primi del '900. Lo studio Pietrobelli e Zizioli si è occupato, senza cambiarne la tipologia e lo stile, di ricavare spazi in modo perfetto, realizzando nuovi bagni, una lavanderia, la sala da pranzo e lo studio, trasformandola in una casa più razionale, vivibile, senza snaturare la sua architettura, ma proporzionando gli ambienti.

Hanno saputo utilizzare al meglio gli spazi senza alterare la struttura della casa, tanto da stupirmi per il risultato ottenuto, sorprendente! Vorrei sottolineare inoltre, l'ottimo servizio nella gestione del cantiere, ordinato, pulito e soprattutto puntuale nella consegna, coordinato in toto dallo studio Pietrobelli e Zizioli.

Concludendo, mi sono trovata in sintonia con gli architetti su tutte le scelte fatte."

Elaborati